Preston Reed
Automation Tools
Design Projects
FEA / Structural Analysis
Manufacturing
Personal Projects
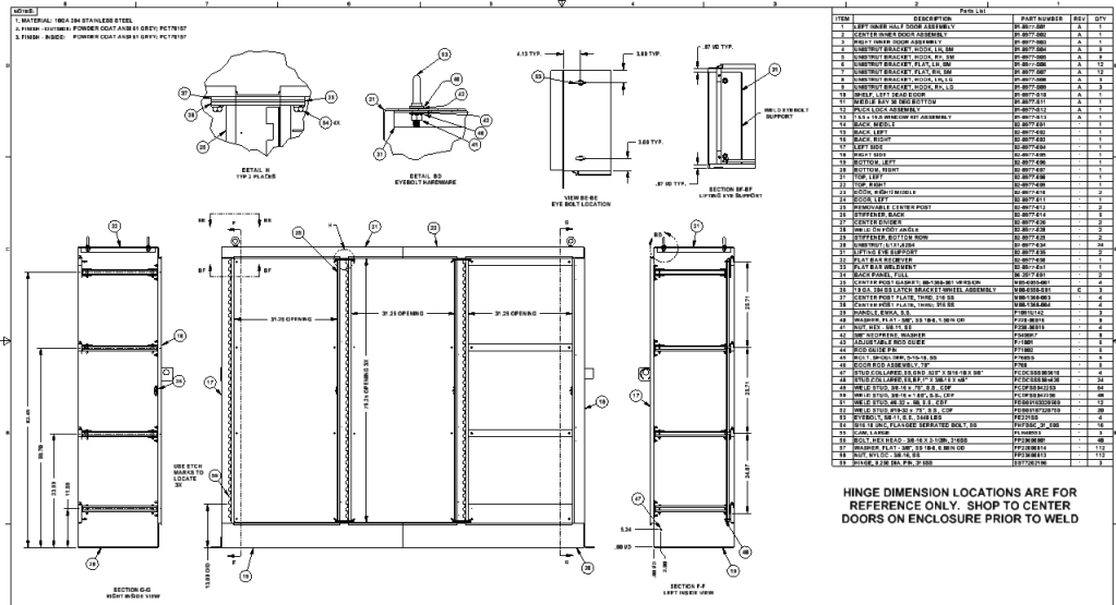
CBP Power Control
Control panel project for CBP at a border facility.
Subscribe
Subscribed
Preston Reed
Sign me up
Already have a WordPress.com account?
Log in now.
Preston Reed
Subscribe
Subscribed
Sign up
Log in
Copy shortlink
Report this content
View post in Reader
Manage subscriptions
Collapse this bar